The Changing Face of Upper Richmond Road


Council gives approval for 5 storey office plan.

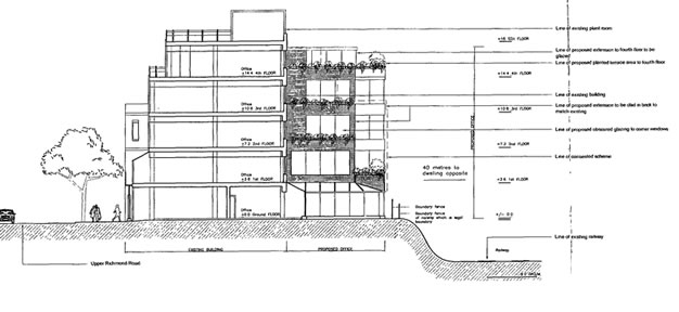
Councillors have approved plans for a five-storey office block extension in Putney. The feedback from the commitee was that "the scheme would provide additional modern office space in the town centre."

The development at the rear of 266-276 Upper Richmond Road will increase the overall floor area by 865 square metres.

Planning impressions below:

 

 

Front from the Upper Richmond Road

 

Side elevation

April 18, 2008

Related links
Associated Articles
You can view the application at www.wandsworth.gov.uk/planning
ref 2008/0614

Council to act on Grade II listed schoolhouse demolition
Participate

Sign up for our free weekly newsletter